Tytułem wstępu:
Projekt, który zakupiliśmy w studio Atrium został do naszych potrzeb nieco (a może nawet dość znacznie) zmodyfikowany.


Główną zmianą jest jak widać zmiana dachu na dwuspadowy co miało zapewnić większą funkcjonalność pomieszczeń na poddaszu i zmiejszenie liczby okien dachowych.
Wymiary naszej działki wymusiły zwężenie budynku o 1m w miejscu podcienia.
Podcień zabudowaliśmy a wyjście na taras umieściliśmy z tyłu domu, jako że tam mamy większą część naszej działki.
Jeśli chodzi o wnętrza
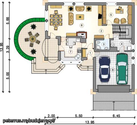
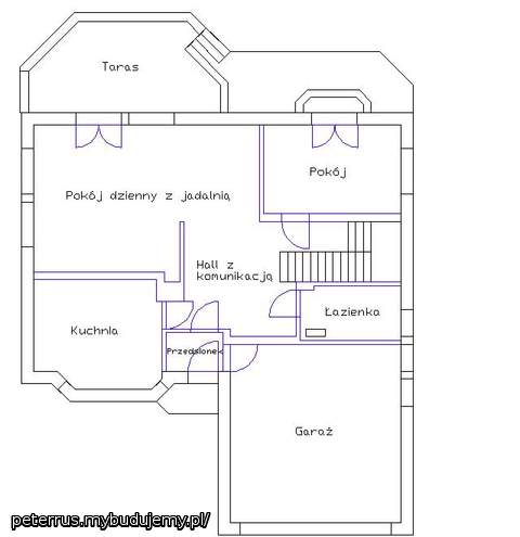
Parter
Było tak:

A u nas będzie tak:

A tak rozmieszczenie pomieszczeń na parterze wygląda w przestrzeni

Poddasze
W orginale jest tak

My planujemy zrobić tak:

A tak rozmieszczenie pomieszczeń na poddaszu wygląda w przestrzeni

Aoto miejsce gdzie ma stanąć nasz dom

I widok od lewej








Pobieranie komentarzy