Etapy
  • Poszukiwania działki
  • Przed budową
  • Fundamenty
  • Ściany, kominy, strop
  • Dach
  • Stolarka okienna i drzwiowa zewnętrzna
  • Instalacje wewnętrzne, przyłącza mediów
  • Wykańczanie budynku (elewacja, wnętrza)
  • Wyposażanie wnętrz
  • Ogród, ogrodzenie, bruk
  • Użytkowanie domu
Archiwum wpisów

Profil użytkownika taniaf23

podłączenie wody

Przed budową

dzień budowy: 148

witam wszystkich.... Czekanie to najgorszy okres ale w tym czasie już mamy kolejne wydatki . Podłączenie wody i to kolejny projekt , znaleść hydraulika dobrego .Jeszcze wszystko do podłączenia :siodełko i inne rzeczy

Koszty budowy
  • hydraulik: 400 zł
  • projekt techniczny: 300 zł

Pobieranie komentarzy

Proszę czekać...

Ukryj komentarze

  • taniaf23 taniaf23

    witam . jak znalazłam projekt to pokazałam go osobie uprawnionej do projektowania i on nam rysował ,i sie zaczeły zmiany zmiany i wyszlo ze po tam tym nic nie zostalo . tak ze nie musialam miec zadnego pozwolenia

  • aknibas aknibas

    Czy musiało byc specjalne pozwolenie na tak duże zmiany w projekcie?czy wystarczyła zgoda kierownika budowy?

  • taniaf23 taniaf23

    Witam Już mamy stan zero , a projekt był " Dominik" ale go tak zmieniliśmy ze nic nie zostało po dominiku , wyszedł własny ,pozdrawiam

  • aknibas aknibas

    Witam:) Kiedy Państwo zaczynacie budowe?i jakiej nazwy jest projekt? Pozdrawiam;)

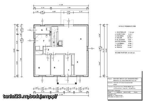
projekt

Przed budową

dzień budowy: 145

Taki mój domek i będzie jeszcze poddasze w póżniejszym czasie

Pobieranie komentarzy

Proszę czekać...

nareszcie pozwolenie na budowe

Przed budową

dzień budowy: 145

Witam wszystkich !!!!! Załatwianie całej papierołogii to jest koszmar ale jak się chce mieć swój własny koncik to jakoś o tym się zapomina , własnie tak jest w mojej sytuacji . Nareszcie po długim załatwianiu wszystkich dokumentów mam pozwolenie na budowe jeszcze tylko dwa tygodnie żeby sie uprawomocniło i ruszamy . Jak o dziwo nie musiałam długo czekac , jak inni piszą ,czekałam tylko 4 dni. Jak do tej pory oto koszty:

Koszty budowy
  • działka: 33 zł
  • mapki: 250 zł
  • mapki geodeta: 500 zł
  • notariusz: 2500 zł
  • projekt własny: 2500 zł
  • przepisanie decyzji: 60 zł
  • wypis i wyrys: 130 zł

Pobieranie komentarzy

Proszę czekać...